Die verschiedenen Duschabtrennungsserien hier im Überblick:
Art.Nr. PBN49/8915/18
Vitra Line asymmetrische Viertelkreis Abtrennung R55
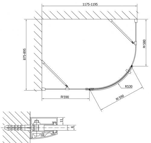
Duschabtrennung Vitra Line für asymmetrisch verlängerte Viertelkreis-Duschwannen 100 x 80 oder 120 x 90 cm,
mit 1 Drehtür
Sicherheitsglas 6 bzw. 8mm
Beschläge und Griffe nach Wahl eckig oder oval
rahmenlos, Aluminium-Wandprofile
Antidrop-Beschichtung
Höhe 200 cm
939,00 € *
Ausführung Links (L) +0,00 € Rechts (R) +0,00 €
Beschläge eckig +0,00 € oval +0,00 €
Maße 100x80 cm +0,00 € 120x90 cm +60,00 €
Tel 08331-8336939
Rückrufwunsch
Kontaktformular