Die verschiedenen Duschabtrennungsserien hier im Überblick:
Art.Nr. PBN15/1615/18
Vitra Line quadratische Eckabtrennung mit 2 Türen über Eck
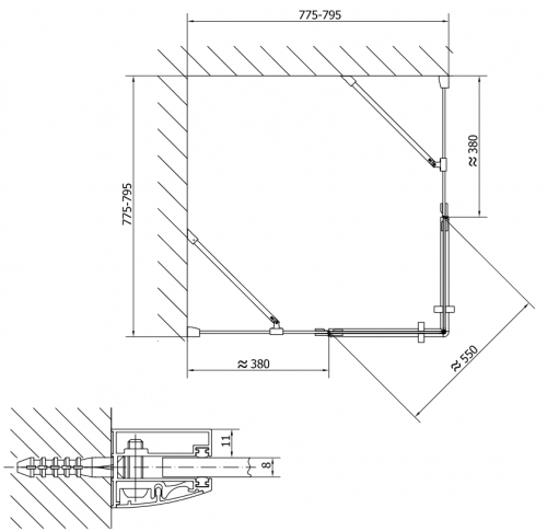
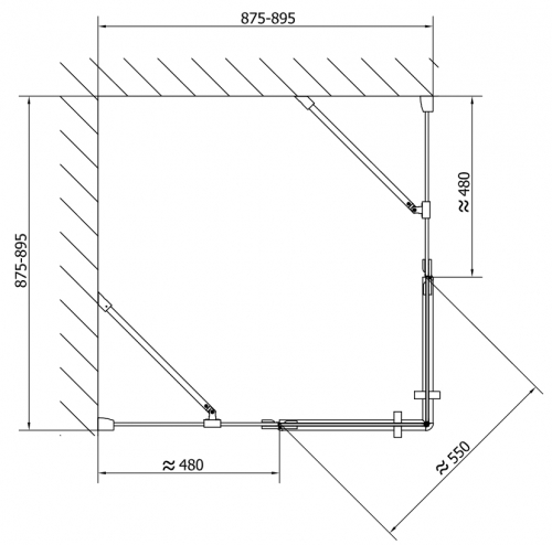
Duschabtrennung Vitra Line für quadratische Duschwannen 80 x 80 oder 90 x 90 cm,
mit 2 Drehtüren über Eck
Sicherheitsglas 6 bzw. 8mm
Beschläge und Griffe nach Wahl eckig oder oval
rahmenlos, Aluminium-Wandprofile
Antidrop-Beschichtung
Höhe 200 cm
799,00 € *
Beschläge eckig +0,00 € oval +0,00 €
Maße 80x80 cm +0,00 €
Tel 08331-8336939
Rückrufwunsch
Kontaktformular