Die verschiedenen Duschabtrennungsserien hier im Überblick:
Art.Nr. PBN50/51/52/93/9915/18 LR
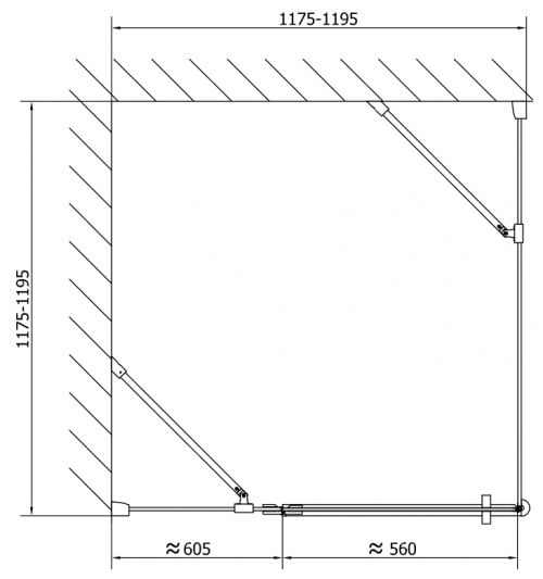
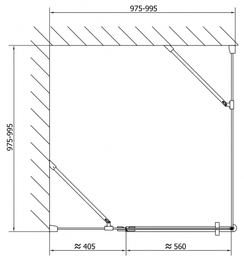
Vitra Line quadratische Eckabtrennung mit 1 Tür
Duschabtrennung Vitra Line für quadratische Duschwannen 80, 90, 100, 110 oder 120 cm,
mit 1 Drehtür Links oder Rechts
OHNE den teils mit abgebildeten Handtuchhalter
Sicherheitsglas 6 bzw. 8mm
Beschläge und Griffe nach Wahl eckig oder oval
rahmenlos, Aluminium-Wandprofile
Antidrop-Beschichtung
Höhe 200 cm
759,00 € *
Ausführung Links (L) +0,00 € Rechts (R) +0,00 €
Beschläge eckig +0,00 € oval +0,00 €
Maße 80x80 cm +0,00 € 90x90 cm +60,00 € 100x100 cm +90,00 € 110x110 cm +130,00 € 120x120 cm +180,00 €
Tel 08331-8336939
Rückrufwunsch
Kontaktformular