Die verschiedenen Duschabtrennungsserien hier im Überblick:
Art.Nr. PEL52/5115
Easy Line Eckabtrennung mit Schiebetüren
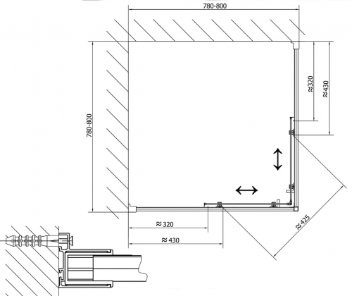
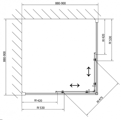
Duschabtrennung Easy Line für quadratische Duschwannen 80 x 80 oder 90 x 90 cm,
mit Schiebetüren über Eck
Sicherheitsglas 6 mm
Aluminium-Profile
Antidrop-Beschichtung
Höhe 190 cm
409,00 € *
Maße 80x80 cm +0,00 € 90x90 cm +30,00 €
Tel 08331-8336939
Rückrufwunsch
Kontaktformular