Badewannenserie Atlantis
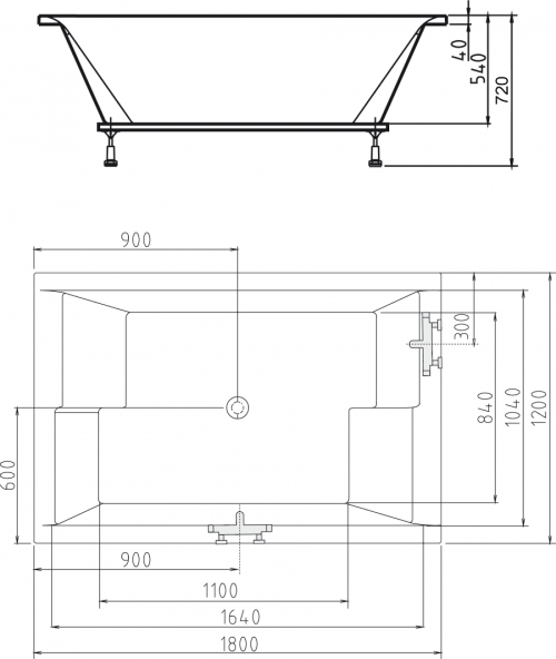
Rechteck Badewanne Dunja 180 x 120 x 54 cm Acryl 120 x 180 extra tiefe und große Duowanne
Art.Nr. P13611
Rechteck Badewanne Dunja 180 x 120 x 54 cm Acryl 120 x 180 extra tiefe und große Duowanne
180 x 120 x 54 cm, 580 Liter, weiß
Preise inkl. Lieferung und zur zeit gültige MwSt.
Lieferzeit ca. 2 Wochen
aus dem hochwertigen durchgefärbten Sanitäracryl Lucite
mit Glasfaserverstärkung und 1,8 cm Bodenverstärkung
Herstellung in der EU
Weitere Farben wie pergamon oder manhattan auf Anfrage möglich!
Ohne eventuell mit abgebildetes weiteres Zubehör!
Ab- und Überlaufgarnitur bitte separat bestellen (Ausnahmelänge 1175mm)!
875,54 € *
Wir empfehlen:

Nutzen Sie unsere Beratung!
